中古一戸建て 渋谷区代々木3丁目
所在地
渋谷区代々木3丁目
20,000万円
32.40坪
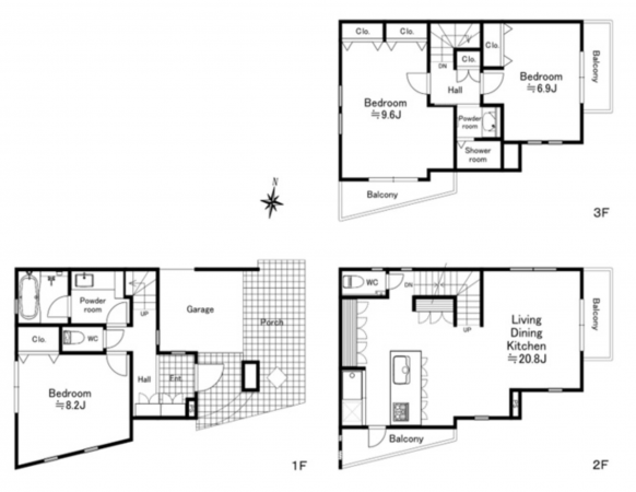
3LDK
明治神宮・代々木公園が徒歩圏内
ビルトインカースペース
物件概要
- 交通
-
小田急線 参宮橋駅 まで 徒歩3分
- 接道状況
-
東側 公道5.4m
南東側 公道3.1m - 土地面積
- 公簿 64.88㎡ (19.62坪)
- 建物面積
- 107.14㎡ (32.40坪)
- 築年数
-
2011年
(平成23)
11月
築14年 - 建ぺい率
- 70%
- 容積率
- 216%
- 土地権利
- 所有権
- 構造および階数
- 木造 地上3階建
- 小学校区
- 中学校区
- 私道負担
- 有 11.83 ㎡
- 地目
- 宅地
- 現況
- 空
- 引渡時期
- 相談
- 駐車場
- 有
- 上水道
- 下水道
- ガス
- 都市計画
- 市街化区域
- 用途地域
- 2種中高
- 設備・条件
- 備考
- 取引態様
- 仲介

