マンション サンテミリオン目黒東山
所在地
目黒区大橋1丁目
2,500万円
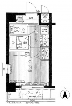
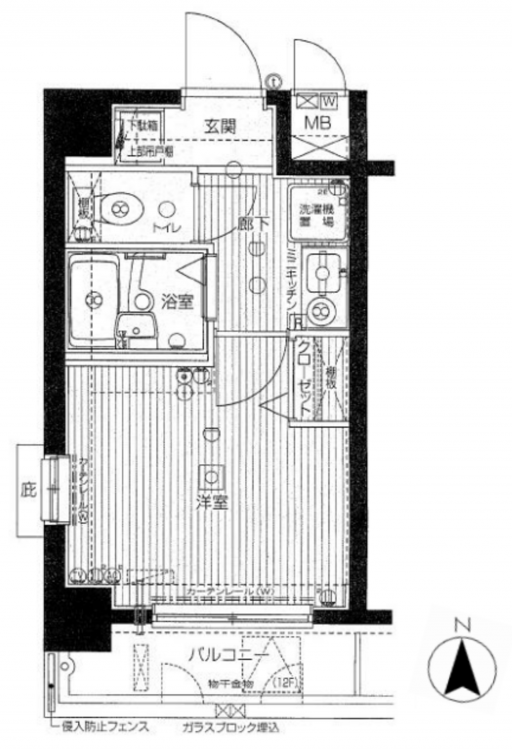
18.36m²
1K
2025年11月末退去予定のお部屋
居住用にも投資用にも利用可能
物件概要
- 交通
-
田園都市線 池尻大橋駅 まで 徒歩8分
井の頭線 神泉駅 まで 徒歩13分
東横線 中目黒駅 まで 徒歩13分
- 専有面積
- 壁芯 18.36㎡
- バルコニー
-
3.41㎡ (南側)
面積不明 - 所在階/階数
- 12階/12階
- 築年数
-
2001年
(平成13)
2月
築24年 - 建ぺい率
- 容積率
- 土地権利
- 所有権
- 構造および階数
- RC(鉄筋コンクリート) 造 地上12階建
- 総戸数
- 32戸
- 小学校区
- 中学校区
- 地目
- 現況
- 空
- 引渡時期
- 相談
- 駐車場
- 駐車場月額
- 管理形態
- 全部委託
- 管理方式
- 管理人巡回
- 管理会社
- 日本ハウズイング㈱
- 管理費
- 9,000円
- 修繕積立費
- 8,100円
- 上水道
- 下水道
- ガス
- 都市計画
- 用途地域
- 商業
- 設備・条件
- 備考
- 2025年11月末 退去予定
- 取引態様
- 仲介

