マンション 中野方南町グランドハイツ
所在地
中野区南台5丁目
8,499万円
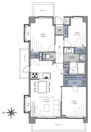
62.16m²
3LDK
丸ノ内線始発「方南町」駅徒歩8分
新宿・銀座・池袋まで乗り換えなしでアクセス可能
富士山眺望(天候による)
2026年1月末頃 リフォーム完成予定
(内容)
フローリング新規貼替
ユニットバス新規交換
洗面化粧台新規交換
トイレ新規交換
建具・玄関収納新規交換
壁・天井クロス新規交換
システムキッチン新規交換
洗濯水栓・防水パン新規交換
物件概要
- 交通
-
丸ノ内線 方南町駅 まで 徒歩8分
- 専有面積
- 壁芯 62.16㎡
- バルコニー
-
14.47㎡ (西側)
面積不明 - 所在階/階数
- 6階/8階
- 築年数
-
1995年
(平成7)
9月
築30年 - 建ぺい率
- 容積率
- 土地権利
- 所有権
- 構造および階数
- RC(鉄筋コンクリート) 造 地上8階建
- 総戸数
- 72戸
- 小学校区
- 中学校区
- 地目
- 現況
- 空
- 引渡時期
- 相談
- 駐車場
- 空有
- 駐車場月額
- 管理形態
- 全部委託
- 管理方式
- 管理人日勤
- 管理会社
- 日本ハウズイング(株)
- 管理費
- 9,400円
- 修繕積立費
- 7,520円
- 上水道
- 下水道
- ガス
- 都市計画
- 用途地域
- 準工業
- 設備・条件
- 食器洗浄乾燥機、浴室乾燥機、モニタ付インターホン、オートロック、角部屋
- 備考
- 取引態様
- 仲介

