マンション シェトワ代々木
所在地
渋谷区代々木4丁目
8,999万円
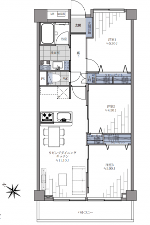
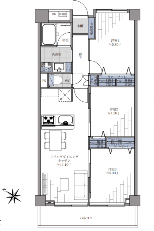
58.86m²
3LDK
新規リノベーション完了予定(2025年12月)
代々木公園・明治神宮が生活圏
新耐震物件
物件概要
- 交通
-
小田急線 参宮橋駅 まで 徒歩6分
京王線 初台駅 まで 徒歩7分
- 専有面積
- 壁芯 58.86㎡
- バルコニー
-
5.94㎡ (南西側)
面積不明 - 所在階/階数
- 3階/6階
- 築年数
-
1983年
(昭和58)
4月
築42年 - 建ぺい率
- 容積率
- 土地権利
- 所有権
- 構造および階数
- RC(鉄筋コンクリート) 造 地上6階建
- 総戸数
- 24戸
- 小学校区
- 中学校区
- 地目
- 現況
- 空
- 引渡時期
- 相談
- 駐車場
- 無
- 駐車場月額
- 管理形態
- 全部委託
- 管理方式
- 管理人日勤
- 管理会社
- (株)東急コミュニティー
- 管理費
- 26,200円
- 修繕積立費
- 18,420円
- 上水道
- 下水道
- ガス
- 都市計画
- 用途地域
- 2種中高
- 設備・条件
- システムキッチン、カウンターキッチン、浴室乾燥機、追い焚き、オートロック、エレベーター
- 備考
- 取引態様
- 仲介

