マンション 東高ペアシティ
所在地
渋谷区上原1丁目
6,499万円
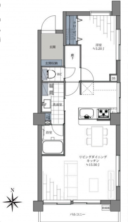
47.25m²
1LDK
2026/2 リフォーム完了予定
2021年大規模修繕工事実施済
長期修繕計画あり
物件概要
- 交通
-
千代田線 代々木上原駅 まで 徒歩2分
- 専有面積
- 47.25㎡
- バルコニー
-
5.40㎡ (南側)
面積不明 - 所在階/階数
- 4階/7階
- 築年数
-
1971年
(昭和46)
10月
築54年 - 建ぺい率
- 容積率
- 土地権利
- 所有権
- 構造および階数
- RC(鉄筋コンクリート) 造 地上7階建
- 総戸数
- 小学校区
- 中学校区
- 地目
- 現況
- 空
- 引渡時期
- 相談
- 駐車場
- 無
- 駐車場月額
- 管理形態
- 全部委託
- 管理方式
- 管理会社
- 管理費
- 18,936円
- 修繕積立費
- 16,864円
- 上水道
- 下水道
- ガス
- 都市計画
- 用途地域
- 2種中高
- 設備・条件
- 備考
- 取引態様
- 仲介

